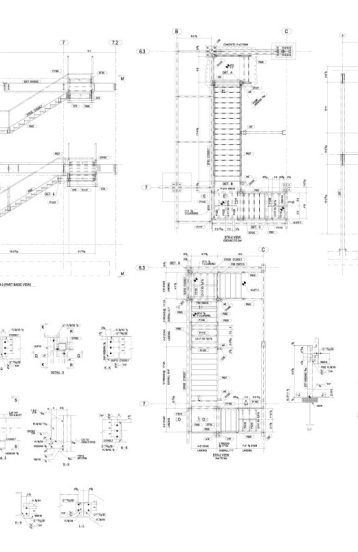
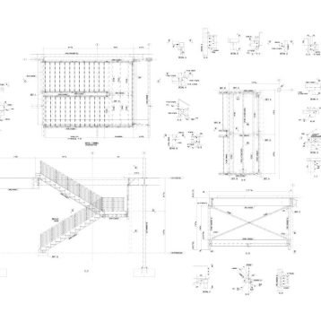
Structural Staircase Steel Detailing
- February 20, 2025
- Posted by: Anil Nair
- Categories:
No Comments
Structural Steel Staircase Portfolio
For top-tier structural engineering, stair case detailing, and steel detailing projects, trust our expertise to bring your vision to life with precision and excellence





Other Portfolio
Structural Steel Platform Detailing
Structural Engineering
Derrick Structural Steel Detailing
Structural Engineering






