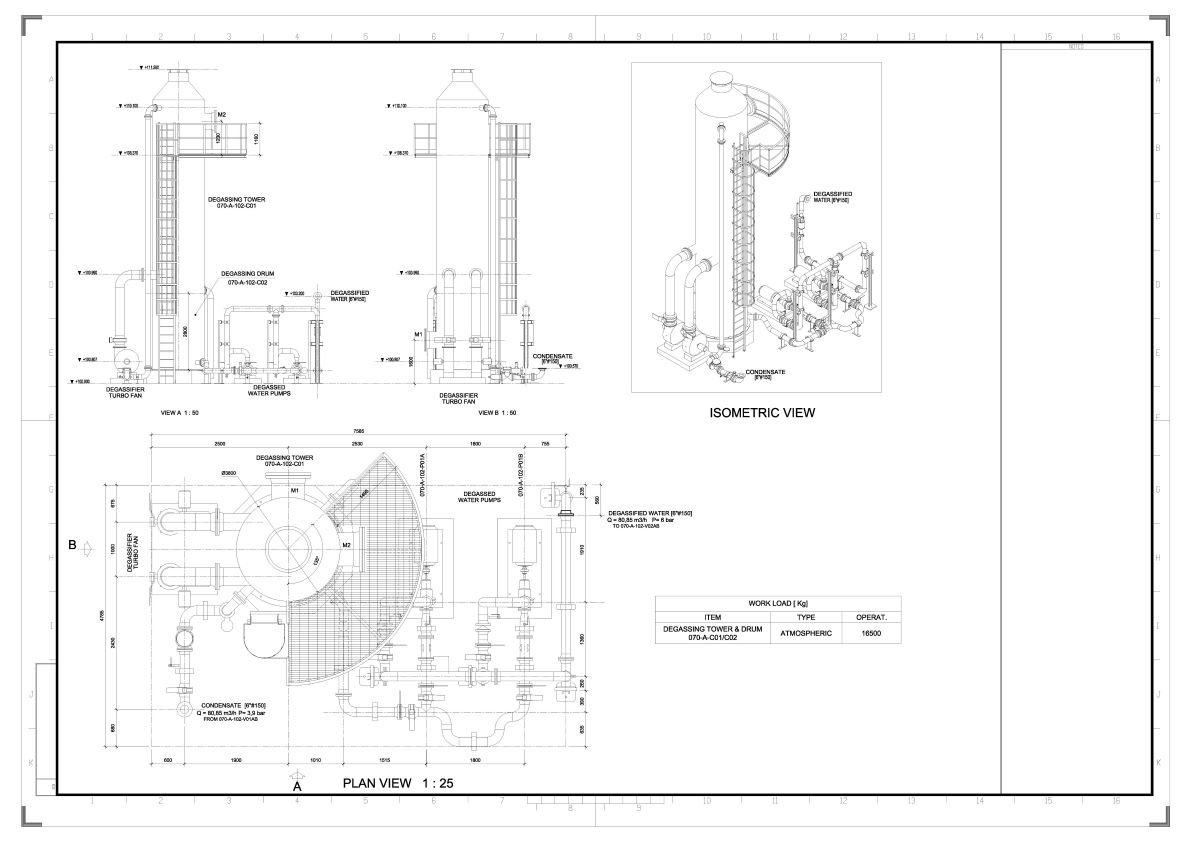
Plant Modelling - Mechanical Engineering
Plant modelling and drafting services are essential for designing efficient industrial facilities, including power plants, refineries, and manufacturing units. Using advanced 3D CAD tools, engineers create detailed layouts for piping, equipment, and structural components, ensuring seamless integration, safety, and compliance with industry standards. Accurate drafting enhances project execution, minimizes errors, and optimizes operational efficiency.
Similar Portfolio
-
3D Exterior Rendering
April 16, 2025 -
3D Interior Rendering
April 15, 2025 -
Vessel
March 19, 2025 -
Tank
March 19, 2025 -
Skid Assembly
March 15, 2025 -
Piping
March 10, 2025 -
Heat Exchanger
March 4, 2025 -
Part Modelling
March 4, 2025 -
Structural Steel Platform Detailing
February 27, 2025 -
Derrick Structural Steel Detailing
February 20, 2025 -
Structural Steel Fencing
February 20, 2025 -
Structural Ladder Detailing
February 20, 2025 -
Pipe Support Structure
February 20, 2025 -
Flare Boom Structure
February 20, 2025 -
Architectural Steel Structure
February 20, 2025 -
Structural Staircase Steel Detailing
February 20, 2025






