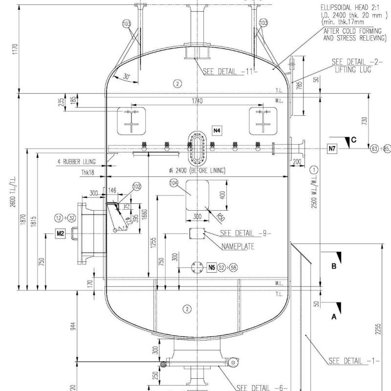
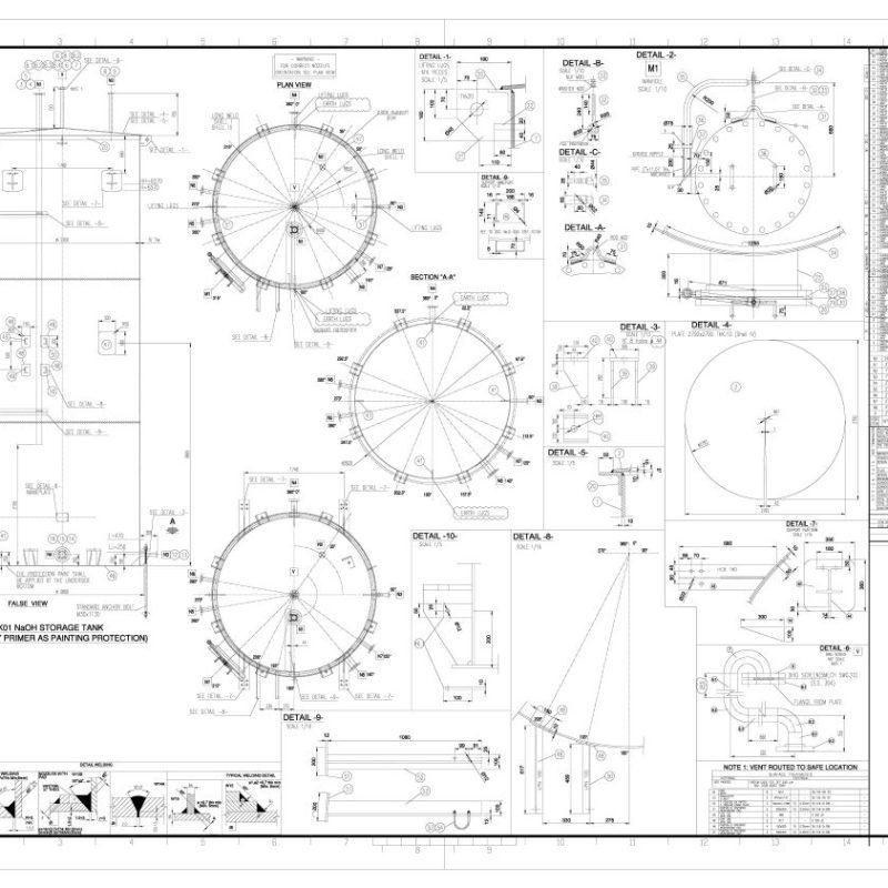
Vessel - Mechanical Engineering
Vessel design and drafting services are crucial for developing pressure vessels and storage tanks used in industries like oil & gas, chemical, and power plants. Engineers use advanced CAD tools to create precise 2D and 3D models, ensuring structural integrity, regulatory compliance, and efficient fabrication. Accurate drafting minimizes errors, enhances safety, and optimizes material usage.
Similar Portfolio
-
3D Exterior Rendering
April 16, 2025 -
3D Interior Rendering
April 15, 2025 -
Tank
March 19, 2025 -
Skid Assembly
March 15, 2025 -
Plant Modelling
March 12, 2025 -
Piping
March 10, 2025 -
Heat Exchanger
March 4, 2025 -
Part Modelling
March 4, 2025 -
Structural Steel Platform Detailing
February 27, 2025 -
Derrick Structural Steel Detailing
February 20, 2025 -
Structural Steel Fencing
February 20, 2025 -
Structural Ladder Detailing
February 20, 2025 -
Pipe Support Structure
February 20, 2025 -
Flare Boom Structure
February 20, 2025 -
Architectural Steel Structure
February 20, 2025 -
Structural Staircase Steel Detailing
February 20, 2025






